Luxus-Duplex-Wohnung zum Verkauf – Turanj, Sveti Filip i Jakov

911.000 €

  • Kode : 15515
  • Lage : Sveti Filip I Jakov
  • Wohnfläche : 130.44 m2
  • Grundstücksfläche : 130.44 m2
  • Etage : 1
  • Anzahl der Zimmer : 4
  • Anzahl der Badezimmer : 3

EIGENSCHAFTEN

  • Klimaanlage : Ja
  • Energieeffizien : Nicht bekannt

BESCHREIBUNG

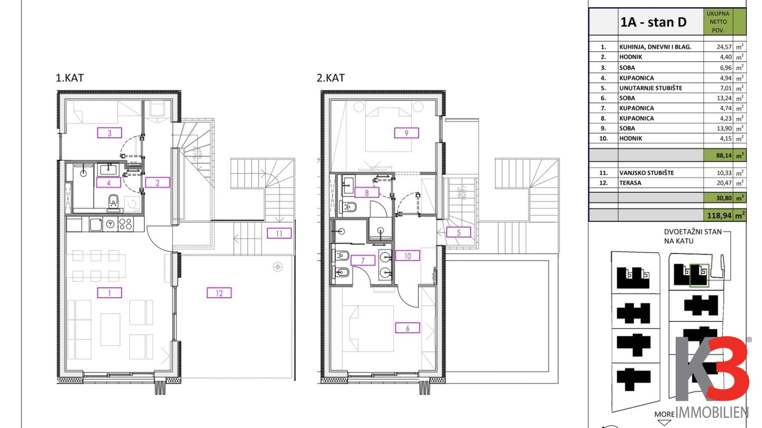
Luxuriöse Maisonette-Wohnung in Turanj zu verkaufen.

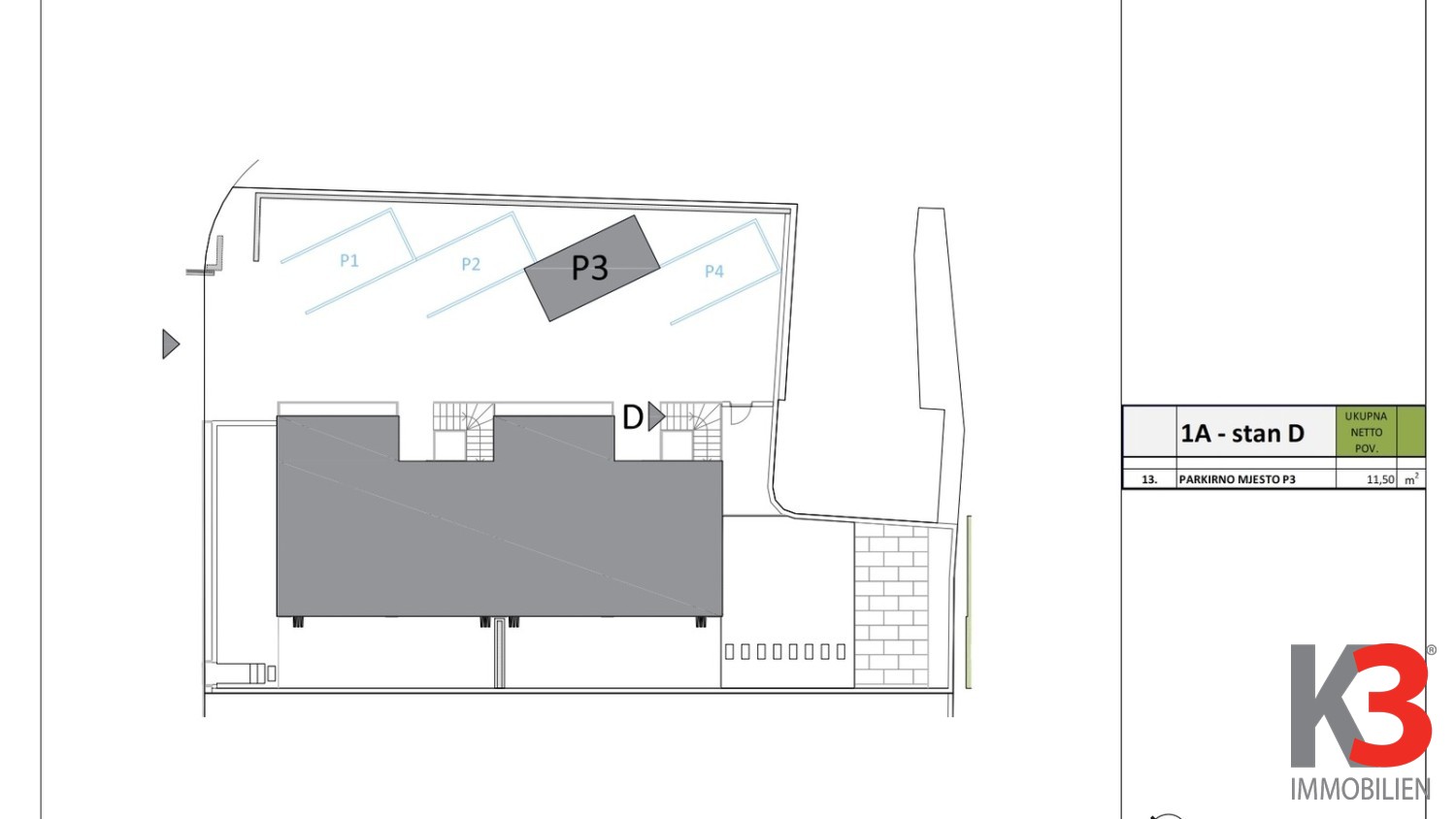
Die Wohnung besteht aus einem großzügigen Wohnzimmer mit Küche und Essbereich, drei geräumigen Schlafzimmern, drei Bädern, einer Terrasse und einem Flur. Ein Außenstellplatz gehört ebenfalls dazu.

Die Immobilie befindet sich in einem neu errichteten urbanen Wohnkomplex, nur etwa 50 Meter vom Strand entfernt.

Es wurden ausschließlich Materialien und Ausstattungen erster Klasse verwendet, darunter dreifach verglaste Aluminiumfenster (CORTIZO COR70) für das Mittelmeerklima, hochwertige Sanitäranlagen und Keramik, eine hinterlüftete Keramikfassade sowie ein Smart-Home-System.

Für weitere Informationen oder einen Besichtigungstermin stehen wir Ihnen gerne zur Verfügung.

Im Falle einer erfolgreichen Vermittlung fällt eine Maklerprovision an.

HINWEIS: Wir beantworten keine möglichen Fehler in den Eigenschaftsbeschreibungen, wir möchten jedoch so genau und genau wie möglich sein.

Vielleicht haben Sie Interesse?

Alle Immobilien Sveti Filip I Jakov

KONTAKTIEREN SIE UNS

Sie interessieren sich für Immobilien in Österreich?